THE STUDIO
A Focused Architectural Canvas


On our site, The Studio is shown as a refined executive home office—illustrating how the architecture supports deep focus, private meetings, and strategic thinking. The structure itself remains intentionally flexible, allowing the space to adapt as your needs evolve.






The Studio is the most restrained and focused model in the collection. Its clean geometry and minimal expression create a calm, distraction-free environment designed to support clarity, leadership, and uninterrupted work.














Model Specifications
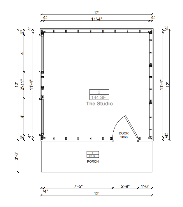
Featured plan 144sqft
Roofing: Standing seam metal w/ option to do architectural shingles
Flooring: Luxury vinyl plank (LVP) 100% waterproof, durable and easy to clean. Perfect for outdoor spaces. (upgrades available)
Exterior: Engineered wood siding
Layout: Open floor plan
Structure: Framed using residential home-construction methods, ensuring full code compliance and structural integrity.
Insulation: Mineral wood insulation
Interior Walls: Drywall (upgrades available)
Ceiling: Tongue - and - Groove or Drywall
Doors & Windows: Energy- efficient double-pane windows and doors.
Door options: Swing Doors
Features
Heating and Cooling: Mini-split systems
UpgradesSmart tint glass (PDLC), accent walls, custom shelving, interior finish upgrades, exterior finish upgrades.
80 sqft
From $25,000
I. Core - Essential private space for focus and separation.
While many clients choose studios in the 80–144 sq ft range for efficiency and simplicity, Studio House models can be expanded into larger architectural structures where local regulations allow. These expanded configurations are ideal for guest living, entertainment spaces, or full wellness environments. Custom pricing is provided based on size, site conditions, and intended use.
A 20% deposit is all that’s required to begin — allowing us to finalize design details and build scheduling.
Delivery fee not included
Ideal Uses
private office
reading & study room
creative retreat
meditation space
III · Signature - Complete performance and lifestyle environment.
Key Benefits
smallest footprint
zoning-friendly
lowest investment entry
minimal site impact
Fits
Desk + chair
built-in storage
lounge chair
120 sqft
From $29,000
II. Expanded - Full functional workspace or wellness environment.
Ideal Uses
private office
reading & study room
creative retreat
meditation space
Key Benefits
comfortable movement area
improved furniture flexibility
increased daily usability
stronger long-term value
Fits
desk + seating
small meeting setup
fitness equipment
daybed or lounge
Ideal Uses
executive home office
single person golf simulator studio
wellness & recovery suite
hosting & gathering space
future guest suite
Key Benefits
maximum versatility
true multi-use flexibility
premium spatial experience
strongest resale & lifestyle value
Fits
work zone + lounge
fitness equipment
golf simulator readiness
small hosting layout
144 sqft
From $32,000
Studio House Size Tiers
Core → Expanded → Signature
Designed to scale usability, not complexity.
Let’s Extend Your Home with Purpose
Every Studio House begins with a conversation.
Whether you’re exploring a detached home office in Charlotte, a golf simulator room in Raleigh, a wellness studio in Charleston, or an ADU in Greenville, our team is here to guide you through a clear and structured process.
We understand that adding space to your property is a meaningful investment. Our backyard studios are designed as permanent architectural additions — built with engineered wood framing and installed to meet residential building standards. This is not a temporary structure. It’s an intentional extension of your home.
During your design consultation, we’ll discuss your goals, how you plan to use the space, your property layout, investment range, and timeline. From there, we provide a curated studio recommendation aligned with your vision and location requirements in North Carolina or South Carolina.
If you’re ready to create a dedicated workspace, private retreat, guest suite, or golf simulator room without the disruption of a full home addition, we invite you to schedule your consultation below.
The Studio House Co. proudly serves homeowners across NC and SC with a refined, professional approach from consultation through installation.
Let’s build something permanent.


